Industrial à Venda, 525 m²
Rodovia Bunjiro NakaoJardim Margarida (Zona Oeste), Vargem Grande Paulista - SP

Informações
- Perfil: Novo
- Posição: Frente Avenida
- Mobília: Não Mobiliado
- Em Condomínio
- Condomínio: Hub Br
- Ano da Construção: 2022
- Aceita FinanciamentoSimular Financimento
Medidas
- Área Total: 525 m²
- Área Privativa: 525 m²
- Terreno Área Total: 249.109,44 m²
Descrição
HUB BR -
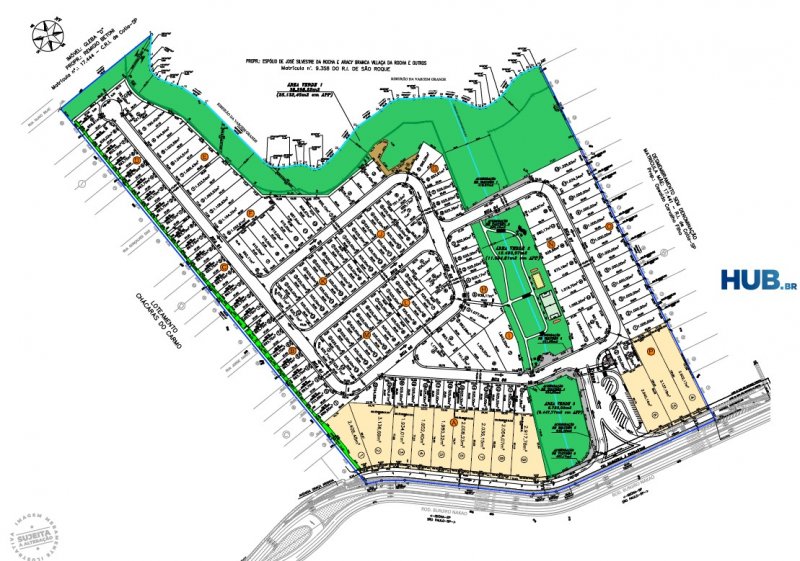
COMPLEXO INDUSTRIAL Complexo Empresarial Fechado, composto por: Lotes Industriais de 525 m2 até 1.325 m2 Lotes Comerciais de 1.400,00 m2 em frente à Via Marginal da Rodovia Bunjiro Nakao
INFRAESTRUTURA A SER SUBSTITUÍDA:
Ruas asfaltadas com guias e sarjetas Rede
de água
Rede de esgoto
Rede de águas pluviais
Rede de energia elétrica com fiação aérea
Arborização da rua Iluminação pública
Portaria 24 horas Sede administrativa, composta por 1 café, 2 salas de reunião, sala de ADM e sala de RH Apoio sede para caminhoneiros, composta por refeitório, refeitório e vestiários Fechamento do perímetro do empreendimento
ÁREA DE LAZER COMPOSTA POR:
- campo de futebol
- quiosques
- Pista de caminhada
PROJETO APROVADO:
LICENÇA MUNICIPAL: 005/2021 - PROC. ADM.: 2947/2020
CETESB: AUTORIZAÇÃO 34375/2020 - TCRA: 28556/2020
O que tem perto?
- Academia
- Açougue, Feiras e Supermercados
- Banco 24 Horas
- Bares
- Comércio
- Creche
- Escolas de Idiomas
- Escolas Particulares
- Escolas Públicas
- Feira Livre
- Hospital
- Padaria
- Pizzaria
- Ponto de Oníbus
- Ponto de táxi
- Posto de Gasolina
- Posto de Saúde
- Praça
- Restaurantes







